Новости
Все новости
17 апреля 2023
Мы стали еще ближе!
Накопительный электрический водонагреватель Electrolux EWH 100 Formax DL
Код товара:
6217
Electrolux EWH 100 Formax DL — это универсальный накопительный водонагреватель с возможностью как вертикальной, так и горизонтальной установки, что позволяет разместить его в самых ограниченных пространствах. Модель оснащена инновационными «сухими» ТЭНами, помещенными в защитные металлические кожухи, покрытые стеклоэмалью, что полностью исключает их контакт с водой и образование накипи. Интеллектуальное электронное управление с дисплеем, функцией самодиагностики и возможностью сохранения до трех индивидуальных температурных режимов обеспечивает максимальный комфорт использования.
Подробнее
881 руб.
990 руб.
Нашли дешевле, мы сделаем скидку!
В наличии
-
+
Цена действительна только для интернет-магазина и может отличаться от цен в розничных магазинах
- Описание
- Характеристики
- Видео
- Отзывы
- Задать вопрос
- Дополнительно
-
ОписаниеКлючевые особенности:
- Объем 100 литров: Обеспечивает горячей водой семью из 3-4 человек.
- Универсальная установка: Возможность монтажа вертикально или горизонтально для экономии места.
- Мощность 2.0 кВт: Быстрый нагрев большого объема воды.
- Три ступени мощности: Выбор 800, 1200 или 2000 Вт для оптимального энергопотребления.
- «Сухие» ТЭНы: Нагревательные элементы не контактируют с водой, исключая накипь и продлевая срок службы.
- Защитные кожухи: ТЭНы помещены в металлические кожухи с эмалевым покрытием.
- Внутреннее покрытие из стеклоэмали: Специальная мелкодисперсионная эмаль, закаленная при 850°C, защищает бак от коррозии.
- Встроенное УЗО: Обеспечивает 100% защиту от поражения электрическим током.
- Электронное управление (DL): Удобная панель с дисплеем и кнопками.
- Функция самодиагностики: При включении проверяет систему и сигнализирует об ошибках миганием индикации.
- Технология памяти: Возможность сохранить до трех индивидуальных режимов температуры.
- Режим ECO (55°C): Предотвращает образование накипи, обеззараживает воду и экономит электроэнергию.
- Время нагрева до 75°C: Составляет 3.98 часа (около 239 минут) в режиме полной мощности.
- Диапазон температур: Точная регулировка от 30 °С до 75 °С с шагом 1°C.
- Защита от перегрева: Автоматически отключает нагрев при критических температурах.
- Защита от сухого нагрева: Блокирует включение при отсутствии воды.
- Предохранительный клапан: Защищает бак от избыточного давления до 7.5 Бар.
- Класс влагозащиты IPX4: Безопасная работа во влажных помещениях.
- Теплоизоляция: Утолщенная пенополиуретановая изоляция эффективно сохраняет тепло.
- Магниевый анод: Обеспечивает дополнительную защиту внутреннего бака от коррозии.
- Гарантия на бак: 7 лет (на основе данных гарантийного талона для серии Formax).
Для чего подходит:
Эта модель идеально подойдет для семей, проживающих в квартирах или домах, где остро стоит вопрос экономии пространства благодаря возможности горизонтальной установки. Объем 100 литров способен обеспечить горячей водой семью из 3-4 человек для комфортного принятия душа и использования на кухне. Технология «сухих» ТЭНов делает этот водонагреватель особенно привлекательным для регионов с жесткой водой, сводя к минимуму необходимость обслуживания и предотвращая поломки из-за накипи. Электронное управление с функцией памяти позволит каждому члену семьи быстро выбрать комфортную для себя температуру.Документы
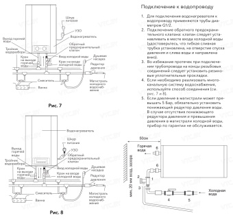
Инструкция Electrolux EWH Formax DL Размер: 17 мб -
Характеристики
Бренд Electrolux Модель EWH 100 Formax DL Тип Накопительный Форм-фактор Квадратный Объем бака,л 100 Способ нагрева электрический Мощность кВт 2.0 Сухой тэн Есть Внутреннее покрытие стеклоэмаль Управление Электронное Подводка труб Боковая (левая), Нижняя Расположение универсальный Способ крепления настенный Особенности Защита от известкового налета, Авторестарт после пропадания питания, Антибактериальная защита, Влагозащитный корпус, Защита от перегрева, Защита от сухого нагрева (защита от включения без воды ), Регулировка уровня мощности, Режим ЭКО ( ECO ), Система самодиагностики неисправности, УЗО (устройство защитного отключения), Электронный термостат Напряжение 220 В Гарантия(месяцев) 84 Высота см. 87.9 Ширина см. 45.4 Глубина см. 46 -
Видео
- Отзывы
-
Задать вопросВы можете задать любой интересующий вас вопрос по товару или работе магазина.
Наши квалифицированные специалисты обязательно вам помогут. -
Дополнительно
Импортер: ООО "МэйдИмпорт», ул. Короля, 2, пом. 24
Сервисные центры: ЗАО"БытТехноСервис" г. Минск, ул. Маяковского, д.14"
Цена при покупке в рассрочку: 990 руб.













