Новости
Все новости
17 апреля 2023
Мы стали еще ближе!
Накопительный электрический водонагреватель Electrolux EWH 30 Formax
Код товара:
6205
Electrolux EWH 30 Formax — это компактный универсальный водонагреватель с возможностью вертикальной или горизонтальной установки, что позволяет разместить его в самых ограниченных пространствах, например, над дверью или под потолком. Модель оснащена инновационными «сухими» ТЭНами в защитных металлических кожухах, которые исключают контакт нагревательных элементов с водой и полностью предотвращают образование накипи. Простое механическое управление с тремя ступенями мощности и встроенное УЗО обеспечивают надежность, безопасность и долговечность эксплуатации.
Подробнее
538 руб.
605 руб.
Нашли дешевле, мы сделаем скидку!
В наличии
-
+
Цена действительна только для интернет-магазина и может отличаться от цен в розничных магазинах
- Описание
- Характеристики
- Видео
- Отзывы
- Задать вопрос
- Дополнительно
-
ОписаниеКлючевые особенности:
- Объем 30 литров: Идеальный запас горячей воды для одного человека или пары.
- Универсальная установка: Возможность монтажа вертикально или горизонтально для максимальной экономии места.
- Мощность 2.0 кВт: Обеспечивает эффективный и быстрый нагрев воды.
- Три ступени мощности: Выбор 800, 1200 или 2000 Вт для оптимального энергопотребления и скорости нагрева.
- «Сухие» ТЭНы: Нагревательные элементы не контактируют с водой, исключая образование накипи.
- Защитные кожухи: ТЭНы помещены в металлические кожухи с покрытием из стеклоэмали.
- Внутреннее покрытие из стеклоэмали: Мелкодисперсионная эмаль, закаленная при 850°C, защищает бак от коррозии.
- Встроенное УЗО: Обеспечивает 100% защиту от поражения электрическим током.
- Механическое управление: Простое и надежное с поворотными ручками.
- Режим ECO (55°C): Предотвращает образование накипи, обеззараживает воду и экономит электроэнергию.
- Время нагрева до 75°C: Составляет всего 1.19 часа (около 71 минуты) в режиме полной мощности.
- Диапазон температур: Плавная регулировка от 30 °С до 75 °С.
- Индикаторы: Отдельные индикаторы включения (ON) и нагрева (HEATING).
- Защита от перегрева: Автоматически отключает нагрев при критических температурах.
- Защита от сухого нагрева: Блокирует включение при отсутствии воды в баке.
- Предохранительный клапан: Защищает бак от избыточного давления до 7.5 Бар.
- Класс влагозащиты IPX4: Безопасная работа во влажных помещениях.
- Теплоизоляция: Утолщенная пенополиуретановая изоляция эффективно сохраняет тепло.
- Магниевый анод: Обеспечивает дополнительную защиту внутреннего бака от коррозии.
- Гарантия на бак: 7 лет (на основе данных гарантийного талона для серии Formax).
Для чего подходит:
Эта модель идеально подойдет для одного человека или пары, проживающих в малогабаритной студии, на даче или в офисе, где критически важно рационально использовать каждый сантиметр пространства. Универсальная установка позволяет разместить водонагреватель горизонтально над дверью или в нише, где вертикальный прибор просто не поместится. Объем 30 литров обеспечивает быстрый нагрев воды для душа или мытья посуды без длительного ожидания. Технология «сухих» ТЭНов делает эту модель идеальным решением для регионов с жесткой водой, полностью устраняя проблему накипи и продлевая срок службы прибора, а простое механическое управление не требует особых навыков эксплуатации.
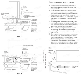
Документы
Инструкция Electrolux EWH Formax Размер: 17 мб -
Характеристики
Бренд Electrolux Модель EWH 30 Formax Тип Накопительный Форм-фактор Квадратный Объем бака,л 30 Способ нагрева электрический Мощность кВт 2.0 Сухой тэн Есть Внутреннее покрытие стеклоэмаль Управление Механическое Подводка труб Боковая (левая), Нижняя Расположение универсальный Способ крепления настенный Особенности Защита от известкового налета, Антибактериальная защита, Влагозащитный корпус, Защита от перегрева, Защита от сухого нагрева (защита от включения без воды ), Механический термостат, Регулировка уровня мощности, Режим ЭКО ( ECO ), УЗО (устройство защитного отключения) Напряжение 220 В Гарантия(месяцев) 84 Высота см. 54.5 Ширина см. 34.4 Глубина см. 35.9 -
Видео
- Отзывы
-
Задать вопросВы можете задать любой интересующий вас вопрос по товару или работе магазина.
Наши квалифицированные специалисты обязательно вам помогут. -
Дополнительно
Импортер: ООО "МэйдИмпорт», ул. Короля, 2, пом. 24
Сервисные центры: ЗАО"БытТехноСервис" г. Минск, ул. Маяковского, д.14"
Цена при покупке в рассрочку: 605 руб.














