Новости
Все новости
17 апреля 2023
Мы стали еще ближе!
Газовая колонка Bosch Therm 4000 O WR 13-2B (розжиг от батареек)
Код товара:
6101
Bosch Therm 4000 O WR 13-2B — это мощный проточный газовый водонагреватель с производительностью 13 л/мин для нескольких точек водоразбора. Электронный розжиг от батареек обеспечивает автоматическое включение и независимость от электросети. Система с запальной горелкой, работающей только в момент розжига, существенно экономит газ. Безопасность гарантируется ионизационным контролем пламени, датчиком тяги и ограничителем температуры. Прочное водяное регулирование поддерживает стабильную температуру даже при перепадах давления воды.
Подробнее
Нашли дешевле, мы сделаем скидку!
Временно отсутствует
Наши менеджеры обязательно свяжутся с вами и уточнят условия заказа
Цена действительна только для интернет-магазина и может отличаться от цен в розничных магазинах
- Описание
- Характеристики
- Отзывы
- Задать вопрос
- Дополнительно
-
ОписаниеКлючевые особенности:
- Производительность 13 л/мин: Обеспечивает комфортный душ и одновременное использование горячей воды на кухне.
- Мощность 26 кВт: Гарантирует быстрый и эффективный нагрев воды до нужной температуры.
- Питание от двух батареек R20 (LR20) 1,5В: Автономный розжиг не требует подключения к электросети 220В (батарейки в комплекте).
- Индикация разряда батареек: Красный светодиод на выключателе мигает при необходимости замены элементов питания.
- Зеленый светодиод работы горелки: Наглядно показывает, что основная горелка зажглась и работает.
- Экономичная система розжига: Запальная горелка горит только несколько секунд для розжига основной, экономя газ.
- Открытая камера сгорания (тип B11BS): Забор воздуха для горения происходит непосредственно из помещения.
- Механическое управление: Две независимые ручки для регулировки мощности горелки и расхода воды.
- Ионизационный контроль пламени: Мгновенно перекрывает газ при угасании горелки.
- Датчик контроля тяги: Блокирует работу колонки при недостаточной тяге в дымоходе, предотвращая отравление угарным газом.
- Ограничитель температуры: Защищает теплообменник от перегрева.
- Работа при низком давлении: Минимальное рабочее давление всего 0,1 бар, подходит для старых домов.
- Водяной фильтр на входе: Задерживает песок и ржавчину, защищая водяную арматуру.
- Постоянство протока: Обеспечивает стабильный расход воды при переменном давлении в магистрали.
- Нижняя подводка коммуникаций: Упрощает монтаж и позволяет скрыть трубы.
- Возможность перенастройки на сжиженный газ: Можно перевести с природного газа на пропан-бутан (комплект приобретается отдельно).
- Защита от замерзания: Предусмотрена процедура слива воды через специальную заглушку.
- Экологичный теплообменник: Не содержит сплавов олова и свинца.
- Водяная арматура из перерабатываемого пластика: Изготовлена из усиленного стекловолокном полиамида, пригодного для вторичной переработки.
- Регулярное техобслуживание: Рекомендуется ежегодная проверка специалистом для поддержания эффективности и безопасности.
Для чего подходит:
Bosch Therm 4000 O WR 13-2B идеально подходит для просторных квартир и частных домов с действующим дымоходом, где проживает семья из 3-4 человек. Высокая производительность 13 л/мин позволяет комфортно принимать душ и одновременно использовать горячую воду на кухне без потери температуры и напора. Автономность от электричества делает его незаменимым в регионах с частыми перебоями электроснабжения. Мощность 26 кВт обеспечивает стабильный нагрев воды даже в зимний период. Важно помнить, что для установки требуется квалифицированный специалист и помещение с хорошей вентиляцией, соответствующее требованиям безопасности.
.png)
Документы
Therm 4000 O WR 13-2B Размер: 992 кб -
Характеристики
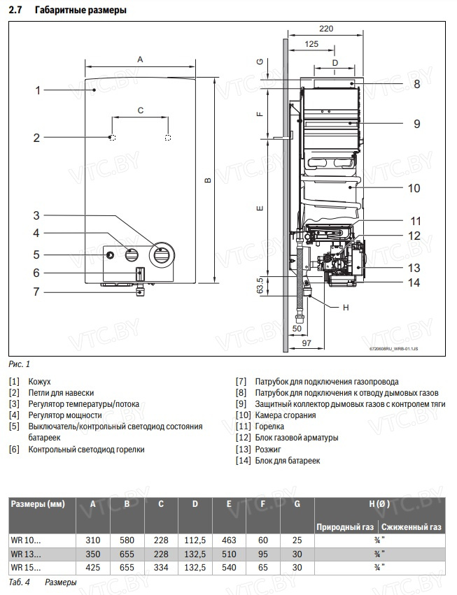
Бренд Bosch Модель Therm 4000 O WR 13-2B 7702331718 Тип Проточный Форм-фактор Плоский Способ нагрева газовый Мощность кВт 22.6 Производительность (л/мин) 13 Камера сгорания открытая Тип розжига электронный Управление Механическое Подводка труб Нижняя Расположение вертикальный Способ крепления настенный Особенности Защита от перегрева, Регулировка уровня мощности Гарантия(месяцев) 24 Высота см. 65.5 Ширина см. 35 Глубина см. 22 - Отзывы
-
Задать вопросВы можете задать любой интересующий вас вопрос по товару или работе магазина.
Наши квалифицированные специалисты обязательно вам помогут. -
Дополнительно
Импортер: ООО "Теплоплюссервис" ул.Минская, 5-251, Колодищи 223051 Минский р-н Минская областьБеларусь
Сервисные центры: ООО "Теплоплюссервис"
Цена при покупке в рассрочку: 1 749.13 руб.










